Гост Р 52644-2006 Болт Высокопрочный

Высокопрочные болты ГОСТ Р 52644-2006 с шестигранной головкой с увеличенным размером под ключ, класс точности С, размер метрической резьбы от М16 до М48, длина от 40 до 300 мм. Болты высокопрочные ГОСТ Р 52644-2006 используются для соединения и монтажа металлических конструкций в строительстве и машиностроении в районах с умеренным и холодным климатом.
Материалы:
- Сталь: 6,8 8,8 10,9 12,9 (класс прочности для болтов)
- Сталь с покрытием: электролитическое (гальваническое) оцинкование, термодиффузионное оцинкование
- Марки стали: 40Х, 30Х3МФ, 30Х2НМФА, 20Х2НМТРБ
- Климатическое исполнение:
• У (для районов с температурой до -40°С).
• ХЛ (для районов с температурой до -65°С). Головка болта дополнительно маркируется буквами ХЛ.
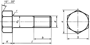
| d | ds | P | K | S | е | r | b | |
|---|---|---|---|---|---|---|---|---|
| l≤150 | l>150 | |||||||
| М16 | 16 | 2 | 12 | 27 | 29,9 | 1,2 | 38 | 44 |
| М18 | 18 | 2,5 | 13 | 30 | 33,3 | 1,2 | 42 | 48 |
| М20 | 20 | 2,5 | 14 | 34 | 35 | 1,6 | 46 | 52 |
| М22 | 22 | 2,5 | 15 | 36 | 39,6 | 1,6 | 50 | 56 |
| М24 | 24 | 3 | 17 | 41 | 45,2 | 1,6 | 54 | 60 |
| М27 | 27 | 3 | 19 | 46 | 50,9 | 1,6 | 60 | 66 |
| М30 | 30 | 3,5 | 19 | 50 | 50,9 | 2 | 66 | 72 |
| М36 | 36 | 4 | 23 | 60 | 60,8 | 2 | 78 | 84 |
| М42 | 42 | 4,5 | 26 | 65 | 72,1 | 2 | 90 | 96 |
| М48 | 48 | 5 | 30 | 75 | 83,4 | 2 | 102 | 102 |
Обозначения:
d - номинальный диаметр резьбы
ds- диаметр стержня
P - шаг резьбы
K - высота головки
S - размер под ключ
e - диаметр описанной окружности, не менее
r - радиус под головкой
b - длина резьбы
l - длина стержня
Крепёжные изделия в дополнение к высокопрочным болтам ГОСТ Р 52644-2006:
- ГОСТ Р 52645-2006 гайка высокопрочная шестигранная с увеличенным размером под ключ.
- ГОСТ Р 52646-2006 шайба к высокопрочным болтам.
Аналоги ГОСТ Р 52644-2006:
- ГОСТ 22353-77 болты высокопрочные класса точности В.
- DIN 6914 (EN 14399-4) болты НV с шестигранной головкой с увеличенным размером под ключ для стальных конструкций.
- ISO 7411 болты с шестигранной головкой для высокопрочных строительных болтовых соединений с увеличенным размером под ключ, класс точности С.
Вы можете заказать и купить высокопрочные болты ГОСТ Р 52644-2006 по оптовым ценам в компании СФЕРА НН.